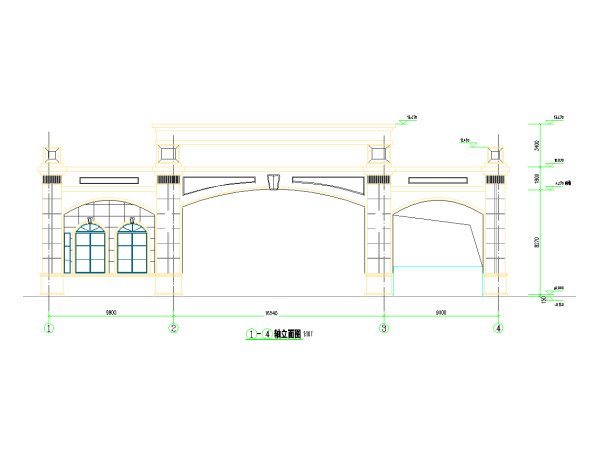
河北未来城项目-大门设计

发布日期:2022-11-26